Businesspark de Kolk gebouw Benthe
Businesspark De Kolk gebouw “Benthe”
14 hoogwaardige nieuwe bedrijfsunits op bedrijventerrein De Kolk te Swifterbant.
In Swifterbant heeft u als ondernemer volop ruimte om te groeien. De centrale ligging in het land en de snelle aansluiting via de A6 maken het bedrijventerrein erg goed bereikbaar. De uitstekende ontsluiting en scherpe prijzen van bedrijfshuisvesting maakt het voor ondernemers aantrekkelijk om te investeren op deze locatie.
Businesspark De Kolk
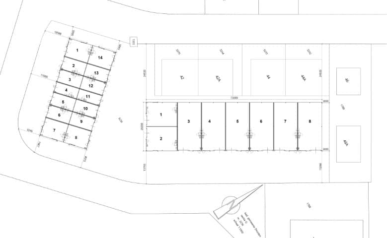
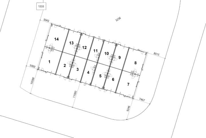
De hoge kwaliteitseisen zijn voor de ontwikkelaar uitgangspunt geweest voor het ontwerp van de totaal 22 bedrijfsruimtes op businesspark De Kolk. De bedrijfsruimtes variëren in grootte tussen de 45 m2 en de 200 m2 BVO. Het betreft een complex met 2 gebouwen; gebouw “Ariana” met 8 bedrijfsunits en gebouw “Benthe” met 14 bedrijfsunits. Het hoogwaardige materiaalgebruik, de moderne uitstraling en de riante hoogte geven uw onderneming een zeer professionele uitstraling.
Multifunctioneel
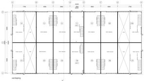
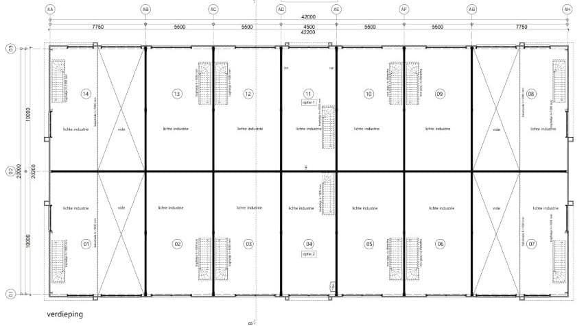
De verdiepingshoogte en de constructie maken het mogelijk om ook de verdiepingen multifunctioneel te gebruiken. Bijvoorbeeld als kantoor of voor opslag. Iedere bedrijfsruimte heeft een houten trap die toegang biedt tot de optionele eerste verdieping. Tevens beschikken alle bedrijfsruimtes over fraaie raampartijen die voor daglicht en ventilatie kunnen zorgen.
Duurzaamheid
Alle bedrijfsunits worden gasloos opgeleverd. De isolatiewaarden voldoen aan de laatste normen van het bouwbesluit. Ze worden standaard voorzien van een eigen meterkast voor elektra- en wateraansluiting. De bedrijfsruimtes hebben een lage energiebehoefte omdat er gekozen is voor een slim ontwerp van de gebouwschil en door het toepassen van uitstekende isolatie. De daken zijn geschikt gemaakt om eventueel zonnepanelen op te installeren.
- De koopsom is vrij op naam (v.o.n.), exclusief BTW.
- Er is een optielijst beschikbaar
- Eventuele wensen die niet in de optielijst staan kunnen besproken worden.
- In overleg met Innova Concepten wordt dan gekeken of dit technisch haalbaar is.
- Alle bedrijfsunits kunnen optioneel worden voorzien van een verdiepingsvloer
Iedere unit is standaard voorzien van onderstaande voorzieningen:
- Meterkast met elektra zowel 220V als 380V (3x25A) en wateraansluiting
- Riolering voor o.a. toilet voorbereid
- Monolithisch gevlinderde betonvloer, volledig onderheid, vloerbelasting 1000 KG/m2
- Betonnen scheidingswanden
- Dakconstructie voorbereid voor zonnepanelen
- Buitenlamp LED met schemerschakelaar
Gebruik
De bedrijfsunits mogen onder andere worden gebruikt als werkplaats, opslagruimte, magazijn en montageruimte. Op de verdieping is er de mogelijkheid extra magazijn of kantoor te realiseren. Eventuele verdere gebruiksfuncties kan men terugvinden in het geldend bestemmingsplan.
Appartementsrecht / VVE
Voor het onderhoud en beheer van de gemeenschappelijke delen, waaronder het gemeenschappelijke buitenterrein en onderhoud pand wordt van rechtswege een Vereniging van Eigenaren (kortweg VvE) opgericht. Een koper is bij oplevering van de bedrijfsruimte automatisch lid van de Vereniging van Eigenaren.
Disclaimer:
Het gebouw moet nog worden gebouwd, alle foto's en artist impressions zijn uitsluitend om aan te geven wat er gebouwd gaat worden en mogelijk is. Aan deze informatie kunnen geen rechten worden ontleent.
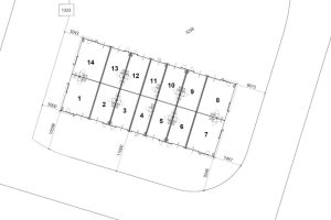
Unit overzicht
| Unit | afm BxD | Begane grond | Verdiepingsvloer | Totaal vloeroppervlakte | Status | Prijs v.o.n. excl. BTW |
|---|---|---|---|---|---|---|
| 1 | 7,8x10 m | 78 m² | 76 m² | 154 m² | VERKOCHT | - |
| 2 | 5,5x10 m | 55 m² | 53 m² | 108 m² | VERKOCHT | - |
| 3 | 5,5x10 m | 55 m² | 53 m² | 108 m² | VERKOCHT | - |
| 4 | 4,5x10 m | 45 m² | 43 m² | 88 m² | VERKOCHT | - |
| 5 | 5,5x10 m | 55 m² | 53 m² | 108 m² | VERKOCHT | - |
| 6 | 5,5x10 m | 55 m² | 53 m² | 108 m² | VERKOCHT | - |
| 7 | 7,8x10 m | 78 m² | 76 m² | 154 m² | VERKOCHT | - |
| 8 | 7,8x10 m | 78 m² | 76 m² | 154 m² | VERKOCHT | - |
| 9 | 5,5x10 m | 55 m² | 53 m² | 108 m² | VERKOCHT | - |
| 10 | 5,5x10 m | 55 m² | 53 m² | 108 m² | VERKOCHT | - |
| 11 | 4,5x10 m | 45 m² | 43 m² | 88 m² | VERKOCHT | - |
| 12 | 5,5x10 m | 55 m² | 53 m² | 108 m² | VERKOCHT | - |
| 13 | 5,5x10 m | 55 m² | 53 m² | 108 m² | VERKOCHT | - |
| 14 | 7,8x10 m | 78 m² | 76 m² | 154 m² | VERKOCHT | - |
Unit overzicht
| Unit | afm BxD | Begane grond | Verdiepingsvloer | Totaal vloeroppervlakte | Status | Prijs v.o.n. excl. BTW |
|---|---|---|---|---|---|---|
| 1 | 7,8x10 m | 78 m² | 76 m² | 154 m² | VERKOCHT | - |
| 2 | 5,5x10 m | 55 m² | 53 m² | 108 m² | VERKOCHT | - |
| 3 | 5,5x10 m | 55 m² | 53 m² | 108 m² | VERKOCHT | - |
| 4 | 4,5x10 m | 45 m² | 43 m² | 88 m² | VERKOCHT | - |
| 5 | 5,5x10 m | 55 m² | 53 m² | 108 m² | VERKOCHT | - |
| 6 | 5,5x10 m | 55 m² | 53 m² | 108 m² | VERKOCHT | - |
| 7 | 7,8x10 m | 78 m² | 76 m² | 154 m² | VERKOCHT | - |
| 8 | 7,8x10 m | 78 m² | 76 m² | 154 m² | VERKOCHT | - |
| 9 | 5,5x10 m | 55 m² | 53 m² | 108 m² | VERKOCHT | - |
| 10 | 5,5x10 m | 55 m² | 53 m² | 108 m² | VERKOCHT | - |
| 11 | 4,5x10 m | 45 m² | 43 m² | 88 m² | VERKOCHT | - |
| 12 | 5,5x10 m | 55 m² | 53 m² | 108 m² | VERKOCHT | - |
| 13 | 5,5x10 m | 55 m² | 53 m² | 108 m² | VERKOCHT | - |
| 14 | 7,8x10 m | 78 m² | 76 m² | 154 m² | VERKOCHT | - |